设计院道路设计案例分享:湖南岳阳某道路设计
发布时间:2018-10-30 来源:本站 浏览:次
2018年6月,公司通过招投标中标湖南省岳阳市某道路设计工程。道路总长为1800.747m,道路红线宽30.0m,行车道宽度为8m-15m。道路等级为城市次干路,设计速度40km/h。路线红路灯路口设置测速监控安全设施,本次设计根据现场实际情况进行补充设计。设计内容包括交通标志、标线、信号灯、交通监控设计。交通标志主要结构设计基准期为30 年。地基基础设计等级为丙级。
交通牌牌面设计图
标志版面中的图形标识符合GB5768.2-2009规定,标志牌含杆件和基础应符合国标要求,标志版面文字采用工程级反光贴面。色度要求满足《公路交通标志反光膜》GB/T18833-2012 的规定。对反光膜可保证至少使用十年,并保证使用十年后反光脱亮度衰减率不超过20%。
悬臂标志杆图
道路交通标志采用钢结构。立柱(喷塑处理〉、横梁等钢件采用高频焊接钢管,材质Q235-B ,并满足下列要求:
系统接线示意图
设计院目前已经在全国各地完成备案工作,能够承接建筑设计、市政设计、城乡规划、风景园林设计、化工石化设计、电力设计、公路设计、消防装修设计等设计项目,设计服务专线:18782111161
交通平面图

交通牌牌面设计图

信号灯结构图

悬臂标志杆图

1)材质符合《碳素结构钢》 (GB/T700-2006) 的规定,应具有抗拉强度、伸长率、屈服强度、冷弯试验、和硫、磷、碳含量的合格保证。
2)钢材的抗拉强度实测值与屈服强度测值的比值不小于1.2。
3)钢材应有良好的可焊性和合格的冲击韧性。
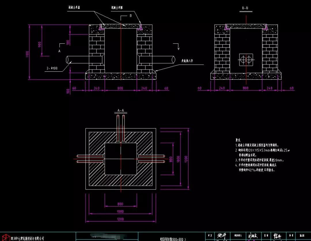
交通牌牌面设计图电孔井设计图

外部线缆布设大样图

系统接线示意图

上一篇: 设计院中标新疆一道路勘察设计项目!!


18782111161
18782111161
226695569


















