建筑设计—某餐饮店项目消防设计
发布时间:2019-05-07 来源:建筑设计 浏览:次
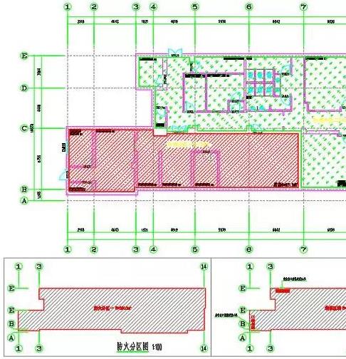
近期,建筑设计中七设计院承接了北京某餐饮店的消防设计。工程概况:3. 原建筑物工程概况:建筑面积1010万平方米;层数:地上1层;建筑高度:7.5m;建筑功能:配套商业;建筑分类:单层民用建筑; 耐火等级:二级;结构形式:钢筋混凝土结构。本次装修改造工程概况:改造项目位于建筑物地上1层局部;装修改造后功能为餐饮,本次装修面积1010平方米;
防烟部分:
楼梯间、前室部分不在本次改造设计范围内。不涉及防烟部分的设计。
排烟部分:
本层设置排烟部分:
1、超过20m长,且不可自然排烟的内走道;
2、地上总建筑面积大于200㎡的无窗房间部分。

本项目采用机械排烟,仅一个防火分区,分为两个防烟分区。

本次装修改造项目位于建筑物地下1层局部;装修区域原始性质为商业,装修改造后功能为餐饮,本次装修面积1010平方米。本次设计所涉及的排烟风机位于屋面,为原有风机。

本项目采用机械排烟,仅一个防火分区,分为两个防烟分区。

本次装修改造项目位于建筑物地下1层局部;装修区域原始性质为商业,装修改造后功能为餐饮,本次装修面积1010平方米。本次设计所涉及的排烟风机位于屋面,为原有风机。
上一篇: 建筑设计—某环境综合治理工程设计工程


18782111161
18782111161
226695569


















