
-
市政行业专业乙级(给排水道路桥梁、城镇燃气、环境卫生
2018-12-11
业务范围:市政行业专业乙级承担市政行业(给水工程、排水工程、道路工程、桥梁工程、城镇燃气、环境卫生)本行业中、小型建设工程项目的主体工程及其配套工程的设计业务。主要标准:...

-
建筑设计甲级资质
2018-12-11
建筑设计甲级资质: 可承接装饰装修设计甲级、建筑幕墙设计甲级、轻型钢结构设计甲级、建筑智能化设计甲级、消防工程设计甲级、照明工程设计甲级等设计项目。

-
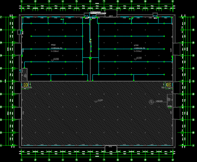
消防改造案例:工业厂房消防改造设计
2018-11-08
2018年10月,建筑设计公司-四川中七设计院承接某公司生产车间消防改造项目,建筑共2层,面积11696 86平方米,主要涉及建筑、电气和给排水专业。

-
设计院--虚开增值税专用发票的注意啦!!!
2018-11-01
最近,有一篇关于先开票后付款将定罪量刑的文章在各朋友圈频繁传播,那么是不是先开发票后付款就是要定罪量刑的呢?人民法院颁布的通知如下: 通知中明确了虚开增值税专用发...

-
设计院中标新疆一道路勘察设计项目!!
2018-11-01
2018年2月,我设计院通过招投标中标新疆维吾尔自治区柯坪县某道路勘察设计项目。根据项目业主的《设计委托书》,进行外业测量、验收、及内业设计。我院组织勘测人员于3月1日进...

-
设计院道路设计案例分享:湖南岳阳某道路设计
2018-10-30
2018年6月,公司通过招投标中标湖南省岳阳市某道路设计工程。道路总长为1800 747m,道路红线宽30 0m,行车道宽度为8m-15m。道路等级为城市次干路,设计速度40km h。路线红路...

-
建筑设计院桥梁设计案例分享:湖南某桥梁设计
2018-10-29
2018年5月,公司通过招投标中标湖南省浏阳市某桥梁设计工程。

-
建筑设计院案例:广东某加固维修设计施工项目
2018-10-25
2018年4月,建筑设计院通过招投标,中标广东省珠海市东湾村某老人文化活动中心加固维修设计施工项目。该项目设计规模等级为小型,本次设计及施工内容主要为原残旧楼房的加固、维修、...


18782111161
18782111161
226695569


















